ALKMAAR - Steeds meer mensen kiezen voor een laatste rustplaats in harmonie met de natuur. Daarom richt de gemeente Alkmaar een deel van de Gemeentelijke Begraafplaats aan de Westerweg in voor natuurlijk begraven, een duurzame en rustige vorm van begraven waarbij het graf opgaat in de natuurlijke omgeving. Vanaf 30 maart 2026 is het mogelijk om op deze manier afscheid te nemen.
Het natuurlijk begraven is nieuw op de Gemeentelijke Begraafplaats. Bij natuurlijk begraven worden uitsluitend afbreekbare materialen toegestaan die de bodem niet belasten. Het gedeelte voor natuurlijk begraven is een uitbreiding op de bestaande begraafplaats. De huidige traditionele graven blijven behouden en toegankelijk.
Aandacht voor de natuur
De aanleg en het beheer van de natuurlijke begraafplaats worden ecologisch begeleid, met aandacht voor biodiversiteit, rust en met behoud van landschappelijke elementen. De graven liggen in een groene, natuurlijke omgeving en krijgen als herkenningspunt een houten schijf die in de loop van de tijd vergaat. De rustperiode is voor onbepaalde tijd.
Aanleg van de natuurbegraafplaats
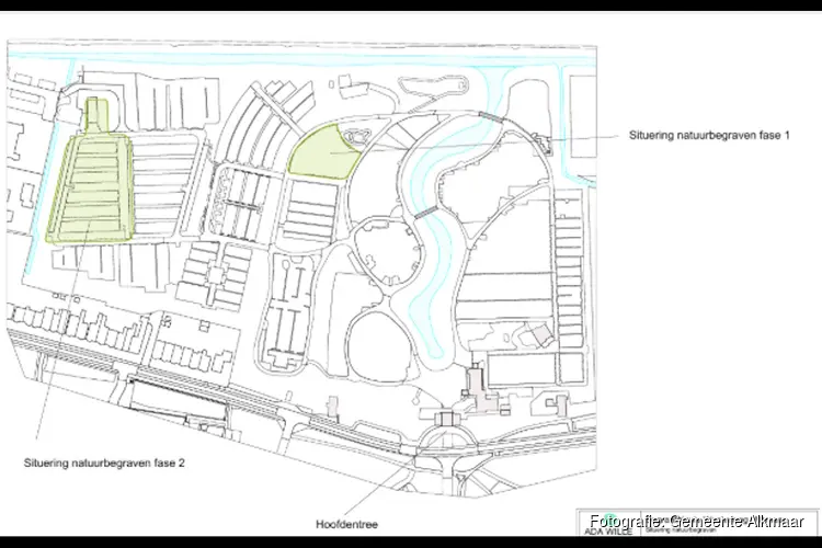
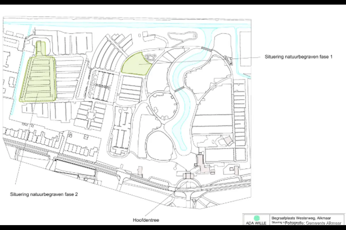
Het aanleggen van de natuurlijke begraafplaats gebeurt in twee fasen. Wij starten met een eerste deel met zo’n 100 natuurgraven, die per 30 maart 2026 beschikbaar zijn voor uitgifte en gebruik. Na deze eerste fase wordt op een ander deel van de begraafplaats een groter natuurgedeelte ingericht met ruim 500 extra plekken. Hiermee voorzien wij structureel in de toenemende vraag naar natuurlijk begraven.
Open dag op 13 juni
Om inwoners en uitvaartprofessionals kennis te laten maken met de nieuwe natuurlijke begraafplaats, organiseert de gemeente een open dag op 13 juni 2026 van 11.00 tot 15.00 uur. Tijdens deze dag kunnen bezoekers terecht voor rondleidingen, uitleg van beheerders en informatie over de mogelijkheden van natuurlijk begraven.
Gemeentelijke Begraafplaats
De gemeentelijke begraafplaats is geopend in 1830 en heeft inmiddels deels een monumentale status. De begraafplaats ligt volledig in het groen. Gelegen bij het Stadspark De Hout is er een parkachtige uitstraling. De begraafplaats is openbaar toegankelijk, maar bezoekers wordt gevraagd om respectvol om te gaan met de rust van de plaats. Het is een plek voor zowel wandelingen als stilte. Er staan zo’n 100 verschillende bomen en er is een gedichtenroute.
Toekomstbestendige stap
Wethouder openbare ruimte, Lars Ruiter is blij met de toevoeging van natuurlijk begraven:
Meer informatie
Informatie over de kosten voor (natuurlijk)begraven in Alkmaar is te vinden op Geboorte, trouwen, overlijden – Gemeente Alkmaar. Meer informatie over natuurlijk begraven vindt u op de website van Stadswerk072: Natuurlijk begraven op de Algemene Begraafplaats Westerweg | Stadswerk072.
Wilt u een plek reserveren? Dan kunt u contact opnemen met de beheerder via telefoonnummer 072 – 548 9230 of via begraafplaats@alkmaar.nl

10.1 ℃























































































